棉條桶特點:1、不銹鋼上口圈,經特殊機械成型,加不銹鋼套環固定,光滑、耐磨、不拉條、不變形,確保棉條品質。2、桶身采用意大利板材流水線生產的塑料板材,并且用國際上最先進的無縫焊接技術,桶身光滑、圓整,抗沖擊,耐老化。紅鋼紙條桶采用國內優質紅鋼紙原料生產。3、配用塑料色環,便于現場管理,提高企業管理水平。4、彈簧負荷按照紡條重量設計,選用65Mn優質彈簧鋼絲,自動成型,經恒溫處理定型,彈簧不偏斜,確保棉條不受意外的牽伸,用不疲乏。
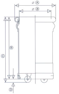
棉條桶部面圖:剖面圖一A、外徑a、內徑B、桶高C、帶輪子全高D、桶底離地面高度
剖面圖二1、不銹鋼上口圈向外反折,加上特殊不銹鋼護圈,兩者以滾壓式固定之。2、HDFE耐沖擊塑料板3、HDFE耐沖擊塑料板桶下補強。4、底盤 5、腳輪 6、彈簧7、塑料高速托盤 8、塑料色環
※ 棉條桶規格:
規格
8"200
9"225
10"250
12"300
14"350
16"400
18"450
20"500
24"600
28"400
32"800
36"900
40"1000
48"1200
56"1400
64"1600
72"1800
80"2000
桶身直徑
200
225
250
300
350
400
450
500
600
700
800
900
1000
1200
桶身高度
標準高度為900,其他高度可根據用戶要求制作,較高為1600,(包括腳輪和桶身)